Používame cookies na optimalizáciu našich webových stránok a našich služieb. Ďalšie informácie o cookies nájdete tu.

Nastavenie


Zátišie pod horou, Horné Otrokovce

Zátišie pod horou, Horné Otrokovce

Popis nehnuteľnosti

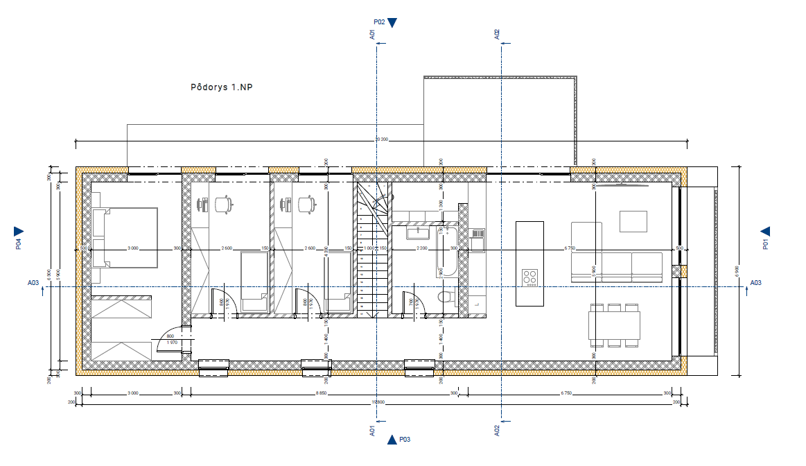
   Predaj, 4 izb. rodinný dom, novostavba, Horné Otrokovce, Hlohovec

? Zátišie pod Horou – Váš nový domov v objatí prírody ?

Predstavujeme vám jedinečný projekt piatich rodinných domov v nádhernom prostredí obce Horné Otrokovce, priamo pri historickom kaštieli, doslova na hranici lesa a obce – v mieste, kde končí ruch civilizácie a začína pokoj prírody. Jeden z domov je už rezervovaný ešte pred oficiálnym spustením predaja, takže neváhajte príliš dlho.

Tento projekt Zátišie pod Horou je určený pre ľudí, ktorí túžia po pokojnom a zdravom bývaní blízko prírody, no zároveň s výborným prístupom k občianskej vybavenosti.

Video obhliadka tu : https://youtu.be/LhH3h3H4EcQ

Virtuálna prehliadka tu : https://youtu.be/t12yYKn6oq8

Čo ponúkame?

Každý z domov je 4-izbový a premyslene riešený tak, aby poskytoval maximálne pohodlie pre rodinný život:

Celková úžitková plocha domu je 137 m² + garážové priestory 40,19 m²

? Technické riešenie:

? Lokalita a pozemky:

Domy budú postavené na týchto pozemkoch:

Prístupová cesta je spevnená a bude zrealizovaná na komplet ihneď po dokončení výstavby.

? Cena: 279.000 €

To všetko v prostredí, ktoré si zamilujete. Ranná káva na terase s výhľadom do lesa, spev vtákov, vôňa dreva a čerstvý vzduch… Zátišie pod Horou nie je len o bývaní – je to nový životný štýl.

? Neváhajte ma kontaktovať – záujem je vysoký a počet domov je obmedzený!
Začiatok výstavby: máj 2025. Buďte medzi prvými, ktorí si zabezpečia svoje miesto v tomto malebnom kúsku sveta.

Pre viac informácií, alebo dohodnutie obhliadky ma neváhajte kontaktovať Miroslav Jakubkovič na telefónnom čísle 0905 526 254. Teším sa na stretnutie s vami a možnosť ukázať vám tento krásny domov. Pre viac o mne navštívte :

https://miroslavjakubkovic.sk/o-mne

 

Videoprehliadka

Miroslav Jakubkovič

Kto som a prečo sa venujem predaju nehnuteľností?

Volám sa Miroslav Jakubkovič a nie som štandardný realitný maklér.

Na realitnom trhu sa pohybujem už od roku 2007. Svoje prvé skúsenosti som získal pri správe a prenájme rodinných domov a ubytovní, keďže som úspešne viedol veľkú ubytovaciu spoločnosť. Od roku 2011 pôsobím ako špecializovaný realitný maklér a od roku 2018 zastávam pozíciu realitného manažéra pre významnú realitnú a finančnú spoločnosť, kde vyhľadávam, školím a vediem nových maklérov.

Kde a čo predávam?

Špecializujem sa na rezidenčný aj komerčný sektor. Moje domovské prostredie je Trnava, Hlohovec, Nitra a ich blízke okolie, kde úspešne sprostredkúvam predaj už viac ako 10 rokov. Rád sa profesionálne postarám aj o vašu nehnuteľnosť.

Prečo si vybrať práve mňa?

Celý život sa snažím vystupovať z radu a inak to nie je ani v realitách. Odmietam byť len ďalším z mnohých maklérov, ktorí si myslia, že predaj spočíva v nacvakaní pár fotiek na mobil a pasívnom čakaní, kým sa niekto ozve. Tento prístup je v priamom rozpore s mojím presvedčením o kvalitnej práci.

Ku každej nehnuteľnosti pristupujem inak a dávam do nej pridanú hodnotu. Môj proces predaja zahŕňa:

  • Nezáväznú inšpekciu a konkurenčnú analýzu – pre správne nastavenie predajnej ceny hneď na začiatku.

  • Návrh predajnej stratégie – plán ušitý na mieru pre váš konkrétny byt, dom či pozemok.

  • Profesionálnu prezentáciu – kvalitné zábery a pútavé videoobhliadky, ktoré vyzdvihnú všetky prednosti vašej nehnuteľnosti.

  • Masívnu propagáciu – využívam najmodernejšie technológie a cielený marketing, vďaka čomu sa o vašej nehnuteľnosti dozvie maximum potenciálnych kupcov.

  • Realitné aukcie (licitácie) – ak to situácia dovoľuje, automaticky využívam predaj formou online aukcie. Vďaka prihadzovaniu záujemcov v reálnom čase tak dokážem predajnú cenu vyhnať na maximum. Pre lepšiu predstavu, ako taká transparentná aukcia prebieha, si môžete pozrieť 

Komplexný 100 % servis Mojou filozofiou je zabezpečiť klientovi maximálny komfort a pocit bezpečia. Preto sú u mňa právne služby, hypotekárne poradenstvo, poistenie nehnuteľnosti a kompletný popredajný servis absolútnou samozrejmosťou.

Výsledkom mojej práce je rýchly predaj za maximálnu možnú cenu. Vďaka tomu klienti moje služby využívajú opakovane, odporúčajú ma svojim známym a často sa stávam ich rodinným realitným agentom.

Pre koho (nie) som správna voľba?

Ak hľadáte "nejakého makléra", ktorý len zavesí inzerát na internet a nechá veci na náhodu, musím vás sklamať – nie sme pre seba tí praví.

Ak však od svojej nehnuteľnosti očakávate profesionálnu starostlivosť, minimálnu časovú stratu a maximálny finančný zisk, ste na profile toho správneho experta.

„Každú nehnuteľnosť predávam tak, ako by bola moja vlastná.“

Moje čísla hovoria za všetko:

Úspešnosť predaja: 99,9 %

Priemerná doba predaja: len 14,8 dňa


Miroslav Jakubkovič

Kontaktný formulár

Stiahnuť PDF